Page suivante
Page précédente
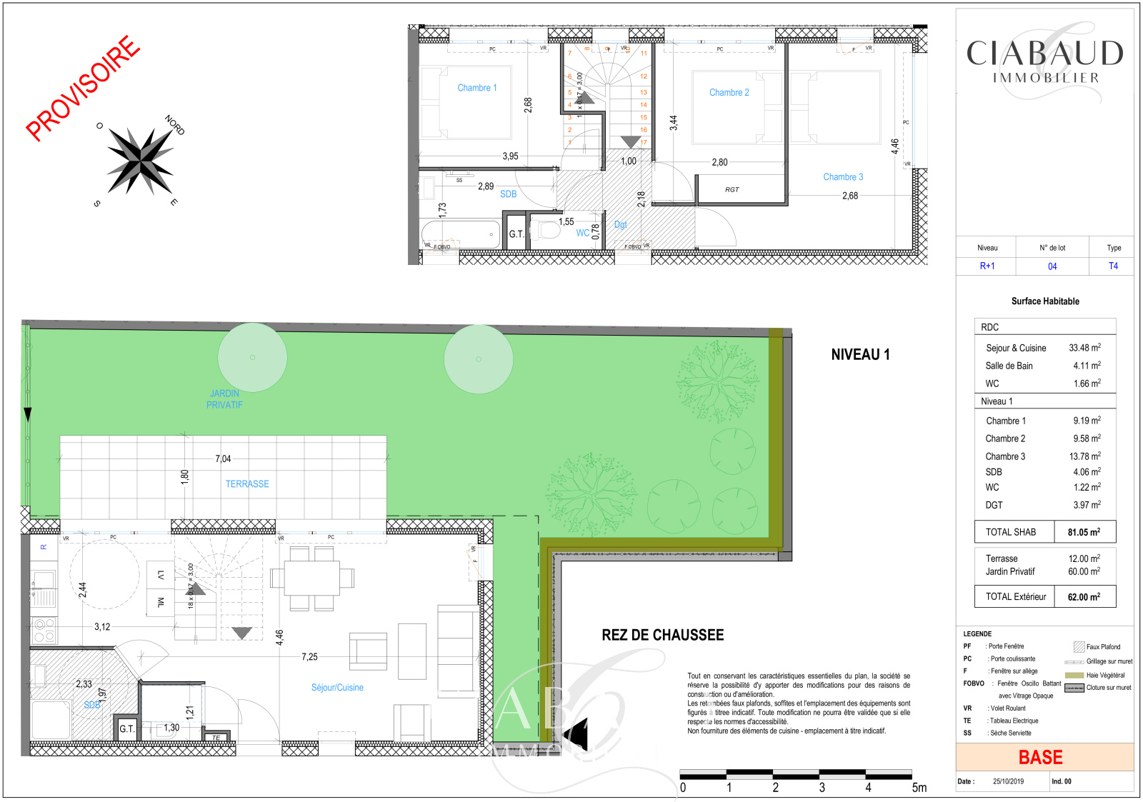
Sausset-les-Pins (13960)

Villa 4 pièce(s) 3 chambre(s) 81.05 m²

1
1
2
Nous consulter
Réf 4-4

Située dans le village de Sausset les Pins, à 5 min à pied du bord de mer. Une villa moderne de type 4 de 81,05m2 avec jardin et deux places de parking extérieur, dans un lotissement sécurisé. Elle est composée au rez-de-chaussée d'un grand séjour climatisé avec cuisine américaine de 33,48m2, d'une salle d'eau et d'un WC indépendant. A l'étage, 3 chambres dont une avec placard, une salle de bains et un WC séparé. Possibilité d'ascenseur en sus. Chauffage électrique. RT 2012. Proche commodités et mer. Contact CIABAUD Immobilier 04 42 53 35 13.

Bilan énergétique

Diagnostics énergetiques
A propos de ce bien Caractéristiques de ce bien
  • Surface 81,05 m²
  • carrez 81,05 m²
  • séjour 33,48 m²
  • 3 chambre(s)
  • 1 salle(s) de bain
  • 1 salle(s) d'eau
  • construit en 2021
  • cuisine américaine
  • Chauffage individuel : radiateur (electrique)
  • 2 parking(s)
  • exposition Nord-Ouest
  • 2 niveau(x)
  • accès handicapé

Composition

Composition de ce bien

Rez-de-chaussée

  • WC 1.66 m²
  • salle d'eau 4.11 m²
  • salon/sejour 33.48 m²

Etage 1

  • chambre 9.19 m²
  • chambre 9.58 m²
  • chambre 13.78 m²
  • salle de bain 4.06 m²
  • WC 1.22 m²

Info copro

Copropriété
  • Copropriété Oui
  • Lot n° 4
  • Nombre de lots 4
  • Plan de sauvegarde Non
  • Statut du syndic Pas de procédure en cours

Autour du bien

Découvrez le quartier

Simulation

Calcul des mensualités
* Champs obligatoires
CIABAUD Immobilier Agence